盘装仪表柜RBZK-221/231/321/331广泛适用于广泛应用于炼油、化工、电力、航空、造船、医药等工业生产过程控制系统中,组成各种规模的控制室
KG系列盘装仪表柜随同各种仪表盘(其中包括盘面上的显示仪、调节仪、记录仪、分析仪以及盘装现场仪表)、电器元件及盘内布线、接管等构成控制系统装置或称成套总成。它被广泛应用于炼油、化工、轻工、纺织、国际、冶金、电力、航空、造船、医药和机械等工业生产过程控制系统中,组成各种规模的控制室。
工业自动化仪表盘,按照结构形式,有屏式仪表盘、框架式仪表盘和柜式仪表盘等三大类。此外,还有控制柜、仪表箱、操纵台及模拟仪表盘等。屏式仪表盘或分成带外照明的;框架式又可分成带附接操纵台、带外照明的;柜式仪表盘形式规格繁多,有后开门、侧开门、带外照明、带附接操纵台等等。
一、仪表盘分类:
RBZK-221两侧封闭,后面开门的柜式仪表盘
RBZK-231左侧封闭,右侧敞开,后面开门的柜式仪表盘
RBZK-321左侧敞开,右侧封闭,后面开门的柜式仪表盘
RBZK-331两侧敞开,后面开门的柜式仪表
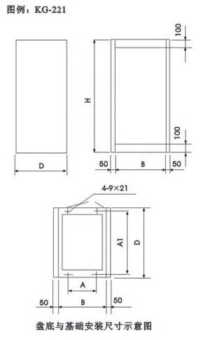
高度
(H) |
宽度
(B) |
深度
(D) |
安装孔中心距 |
 |
| A |
A1 |
2100
(2300) |
600 |
600
900 |
400 |
550
850 |
| 800 |
600 |
| 900 |
700 |
| 1000 |
800 |
| 1100 |
900 |
| 1400 |
1200 |
